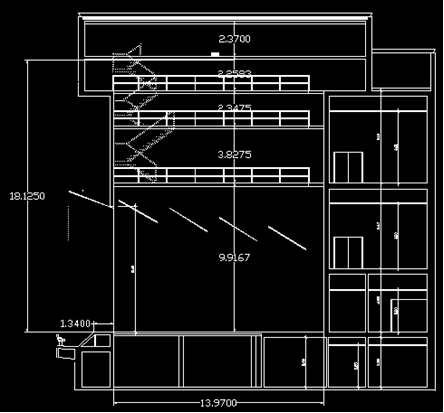
Superficie total construida: 3.076,57 m2.
Planta sótano: 449,35 m2.
Planta baja: 1.539,32 m2. (Acceso, patio de butacas y escenario)
Planta 1ª: 796,58 m2.
Planta 2ª: 291,32 m2.
Nº de butacas: 711 butacas.
Platea: 491 (4 para discapacitados y acompañante).
Anfiteatro: 196
Palcos laterales: 24.
Cimentación:
Las cargas al terreno se transmiten mediante un sistema de zunchos y zapatas de hormigón armado tipo HA-25/B/40/IIa, y acero corrugado B 500S, con las dimensiones y disposición de armaduras que se especifican en el Proyecto.
Muros de Sótano:
Los muros del sótano son de hormigón armado tipo HA-25/B/20/IIa, y acero corrugado B 500S, con las dimensiones y disposición de armaduras que se especifican en el Proyecto.
Solera:
Realizada con hormigón tipo HM-20/B/20/IIa, de espesor 15 cms., incluso mallazo de acero B 500S diámetro 4 mms. y malla 15x15 cms, con impermeabilización por su cara inferior, colocada sobre capa de zahorras artificiales de espesor 20 cms. compactadas al 98% del próctor modificado, debidamente curada y fratasada.
Sobre la solera de patio de butacas se han colocado tabiquillos conejeros de ladrillo cerámico sobre los que se apoyan bardos cerámicos con capa de compresión de 5 cms. de espesor de hormigón tipo HM-20/B/20/Iia y el pavimento, para dejar cámara inferior para la colocación de los conductos y rejillas de climatización.
Estructura:
Sistema de pórticos constituidos por soportes y vigas de perfil de acero laminado en caliente A-42b, constituido detalladamente por elementos estructurales autoportantes de ancho, canto y características que se establecen en el Proyecto, sobre los que se sustenta un forjado unidireccional de semivigueta pretensada, bovedilla de hormigón vibrado, relleno de senos y capa de compresión con hormigón tipo HA-25/B/20/IIa, canto 31 cms., armados los distintos elementos con acero corrugado B 500S. Se considera una carga total uniforme capaz de soportar el forjado tipo de 100 kN/m2, 30 kN/m2 en cubierta de vestíbulo de acceso, sala y escenario, y 100 kN/m2 en resto de cubierta, excepto en la de detrás del escenario, que es de 70 kN/m2.
La estructura metálica está ignifugada para cumplimiento de la Norma NBE-CPI/96, para una estabilidad al fuego tipo EF-120 en planta sótano y EF-90 en el resto del edificio.
Cubierta:
En cubierta de sala y escenario, cubierta a base de panel sandwich de chapa galvanizada, con aislamiento acústico de lana de roca de 80 mms. de espesor y densidad variable 150-200 kg/m3 en el exterior, y otros 80 mms. de espesor y densidad 70 kg/m3 en el interior, con un espesor total de aislamiento de 16 cms.; membrana impermeabilizante, y pavimento de grava.
En cubierta de vestíbulo de acceso, la misma cubierta pero con aislamiento únicamente de 70 kg/m3 y espesor 5 cms.
En el resto, cubierta plana formada por barrera de vapor, aislante térmico tipo poliestireno extruido de espesor 5 cms, faldón de hormigón celular, llaneado y fratasado, en formación de pendientes, con un espesor mínimo de 8 cms., capa de regularización de mortero de cemento de 2 cms de espesor, tela asfáltica impermeable monocapa, soldada y solapada en los paramentos verticales, y acabado en baldosa hidráulica lisa 20x20 cms, todo ello con las juntas de dilatación indicadas en los planos de proyecto, debidamente selladas para asegurar la estanqueidad.
Cerramientos:
En fachadas correspondientes a sala y escenario, doble fábrica de ladrillo cerámico perforado de 12 cms. colocadas a restregón con mortero de cemento 1:6, una interior y otra exterior, con enfoscado interior de la fábrica exterior con mortero de cemento hidrófugo 1:6, y cámara de aire para alojamiento de aislamiento de lana de roca de 70 kg/m3 de densidad y 5 cms. de espesor.
En resto de fachadas, fabrica exterior de ladrillo cerámico perforado de 12 cms. colocado a restregón con mortero de cemento 1:6, enfoscado interior con mortero de cemento hidrófugo 1:6, cámara de aire para alojamiento de lana de roca de 70 kg/m3 de densidad y 5 cms. de espesor, y tabique de ladrillo cerámico hueco del 7 colocado a restregón con mortero de cemento 1:6.
Tabiquería:
Tabicones para divisiones de ladrillo cerámico hueco del 7 y del 11 colocados a restregón con mortero de 1:6. Las paredes de sala, están trasdosadas por el interior con PLADUR, formando un oscuro perimetral en el encuentro con el pavimento 3x3 cms., con un perfil angular el el encuentro.
Solados:
En vestíbulos de acceso de público en plantas baja y primera, y en escalera principal, pavimento de mármol en piezas de 60x60 cms. y 12 mms. de espesor, enrados los rodapiés y zanquines a revestimiento de yeso.
En patio de butacas y en anfiteatro, revestimiento vinílico TARKETT “Optima” de 2 mms. de espesor, en rollos de 2 mts. de ancho, pegado con cola unilateral sobre terrazo (en patio de butacas y en partes horizontales de anfiteatro) o sobre tablero fenólico de 22 mms. de espesor (en graderío de anfiteatro).
En aseos de camerinos, de vestuarios, de planta 2ª, de público, y en almacenes de plantas baja y 1ª, gres cerámico tipo “compacto” en piezas de 20 x 20 cms., recibido con mortero de cemento mixto, y rejuntado con lechada de mortero de cemento coloreado.
En pavimento del escenario sobre el bajo escenario, tarima maciza de “pino melis”, de dimensión de tabla 100 mms de ancho y 22 mms. de espesor, colocada sobre tablero fenólico WBP de 21 mms. de espesor, en piezas desmontables de 81x122 cms., colocadas sobre viguetas de la estructura metálica con una distancia entre ejes de 81 cms. Sobre las viguetas metálicas se ha colocado una cinta de neopreno de 5 mms. de espesor para amortiguación del ruido a impacto y rastreles de madera. Cada placa dispone de cuatro pasadores en su cara inferior para ajuste a la vigueta metálica. En el resto del escenario, tarima maciza de “pino melis”, de dimensión de tabla 100 mms de ancho y 22 mms. de espesor, colocada sobre tablero fenólico WBP de 15 mms. de espesor, atornillado a rastreles de madera. Este pavimento está pintado de color negro.
En el resto del edificio, terrazo tipo “Vacutile” en piezas de 50 x 50 cms., para uso intensivo, colocado sobre capa de mortero cola de espesor máximo 10 mms., capa de mortero de cemento de arena lavada y lámina de separación con el forjado de poliestireno expandido, rejuntado con lechada de cemento coloreada con la misma tonalidad que las baldosas, incluso rodapie de 7 cms. de altura enrasado a paramento terminado. En las escaleras , la huella y tabica son también de terrazo, de una sola pieza, huella por un lado, y tabica por otro, con zanquín enrasado a paramento terminado.
Revestimientos:
Exteriores: Revestimiento de fachadas de bloque de acceso con paneles de madera baquelizada de 10 mms. de espesor, de la casa OBERFLEX, acabado en haya, con juntas vertical y horizontal machiembrada con tornillería aculta de acero inoxidable, todo sobre perfil omega de acero galvanizado, incluso remate superior de chapa de acero inoxidable crudo para pintar de 1,5 mms. de espesor.
Revestimiento de parte superior de bloque de sala con chapa de cobre de 0,65 mms. de espesor y ancho de bandeja 62 cms., con junta alzada engatillada, atornillada a rastreles de madera de pino tratado para intemperie, incluso remate superior de chapa de las mismas características. Se dará a la chapa un tratamiento previo de oxidación.
Revestimiento de resto de fachadas con panel compuesto madera-cemento, de 20 mms. de BETONYP o similar, de 20mms de espesor, con machiembrado simple, atornillado a perfil omega de acero galvanizado con tornillería de acero inoxidable, y sellado a base de cordón de poliuretano color gris.
Zócalo de fachadas a base de aplacado de mármol “Bateig”, en piezas de espesor 4 cms. y dimensión según despiece grafiado en el plano correspondiente, ancladas a fábrica de ladrillo perforado con varillas de acero inoxidable. Está impermeabilizada la cara interior de la fábrica exterior.
Interiores: En petos frontales de anfiteatro, y en paredes laterales de anfiteatro, tablero aglomerado chapado en madera de arce canadiense, sobre rastreles de madera en el caso de paredes, y sobre bastidor de madera anclado a obra en petos.
Enfoscado maestreado de mortero de cemento 1:5 en paramentos verticales y horizontales del ascensor.
Chapado de aseos con gres cerámico tipo “compacto” en piezas de 20 x 20 cms., recibido con mortero de cemento mixto, y rejuntado con lechada de cemento coloreado.
Lucidos de yeso maestreados proyectados en resto de paramentos verticales y horizontales interiores.
Moqueta en paredes laterales de acceso a anfiteatro “Audace” de SOMMER, o similar, con tratamiento para comportamiento al fuego M2, pegada con cola adhesivo.
Bancadas de lavabos en aseos de granito gris cristal de 2 cms. de espesor, con peto frontal de 10 cms. de altura, sobre bastidor metálico de acero galvanizado.


